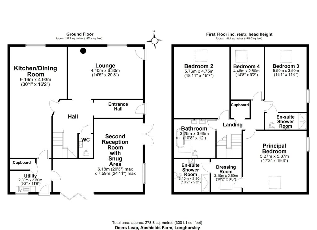
Welcome to Deer’s Leap, Abshields Farm, a rare opportunity to embrace luxury countryside living in the heart of Northumberland. This beautiful corner plot, complete with a sandstone-walled garden, offers over 3,000 sq ft of exquisitely designed living space across two storeys, with four bedrooms and three reception rooms.
Part of an exclusive collection of just six homes, Deer’s Leap captures the perfect balance of contemporary sophistication and rural charm. Nestled in unspoilt countryside, surrounded by rolling fields, mature woodland, and open skies, this idyllic setting offers tranquillity and timeless beauty – from golden summer sunsets to frost-tipped winter mornings. Despite its seclusion, the vibrant market town of Morpeth lies only four miles away, ensuring excellent connections and everyday convenience.
Created by Chardale Country Homes, an award-winning developer renowned for high-end rural projects including Cavil Head Farm and Cheviot Meadows, Deer’s Leap has been designed with both elegance and sustainability in mind. Eco features include an air source heat pump and EV charging point, ensuring a future-focused home that doesn’t compromise on comfort.
Inside, light-filled interiors flow seamlessly through generous living spaces. Expansive bifold doors frame countryside views, while the bespoke in-frame kitchen with hand-painted cabinetry, a striking central island, solid granite worktops, and premium integrated appliances create the heart of the home. Oak herringbone flooring adds warmth and refinement, complemented by a practical boot room and utility.
The bathrooms are true sanctuaries, styled with spa-inspired finishes, designer fittings, underfloor heating, and mood lighting for indulgent relaxation.
South-facing bifold doors open onto terraces and gardens, extending the living space outdoors and merging rustic serenity with modern sophistication.
With completion available in as little as eight weeks, Deer’s Leap is ready for viewing, with opportunities to personalise kitchens, bathrooms, tiles, colour palettes, and finishing touches to suit your lifestyle.
This is countryside living, redefined, a home of lasting quality and beauty in one of Northumberland’s most enchanting rural settings.
Visit our show home on the development and see a finished property, showcasing the quality and the location on offer.



